Nuovi Prodotti
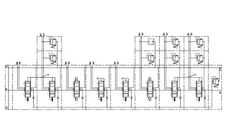
VALVOLA IDRAULICA HIAB 8xPC70 + 2x JOYSTICK - STERZO ELETTRICO 12V
Codice articolo:
12510
OEM:
9990000073139
Aliquota fiscale
22 %
Prezzo senza IVA:
967,21 EUR
Prezzo IVA inclusa:
1.180,00 EUR
Ref:
5

Fornitore:
Turchia
pressione massima connessione "T":
50 bar
Restituzione o cambio:
14 giorni
Peso del prodotto:
32,3 kg
flusso nominale:
70 l/min
Garanzia:
6 mesi
temperatura di funzionamento:
-20 a +80°C
pressione massima connessione "P":
250 bar
temperatura operativa dell'olio:
-15 a +80°C
valvola di sicurezza impostata in fabbrica:
180 bar
intervallo di regolazione della valvola di sicurezza:
50-230 bar
pressione massima connessione "A" e "B":
300 bar











